安科瑞智能照明系統在中美上海施貴寶生物制藥有限公司的應用
摘要:隨著社會經濟的發展及網絡技術、通信技術的提高,人們對照明設計提出了新的要求,它不僅要控制照明光源的發光時間、 亮度, 而且與其它系統來配合不同的應用場合做出相應的燈光場景。隨著社會資源應用結構不斷變革,智能照明控制系統的應用,已成為電力資源應用的發展新趨向。本文通過中美上海施貴寶生物制藥有限公司項目中的照明的應用介紹智能照明在工廠的應用。
關鍵字:智能照明系統;節能減排;照明控制;
0、引言
隨著科學技術的不斷發展,人類社會迎來了電子信息時代。而智能照明控制技術隨著智能化住宅的蓬勃興起而飛速發展,成為照明控制技術發展的一個重要方向。因此,針對現有的智能照明控制系統的優缺點,根據人們的行為模式和住宅的光環境決定照明的控制規律,智能照明控制系統對提高人們的生活質量、節約能源和提倡綠色照明等具有十分重要的意義。
1、 項目概述及建設目標
智能照明系統在很多的地方都有使用,不僅僅存在于家庭住房,公司辦公場所,還有許多的工廠使用到了智能照明系統。隨著社會現代化的進步,我國的工廠不斷的在建設,隨著需要的照明技術也在不斷的提高,照明問題也反映出一共工程的技術成就,好的智能照明系統可以給一個廠區來良好的建筑環境,使得人們在廠區內的感覺非常的舒展,而不好的智能照明系統給一個項目帶來的損失是非常龐大的,不僅僅會造成質量的不過關,甚至可能造成重新建設的后果。所以,智能照明系統在建筑中的應用應該做到切實可行,質量過關,實用可靠。
2、 智能照明的設計
一個建筑物采用了智能照明系統,可以事先設置好光亮程度和照射范圍,設置好之后,建筑物的照明系統就完全的處于全智能狀態,整個一天的照明設備將處于智能工作狀態。當白天的時候,智能照明系統會根據室外的光亮程度,自動調節室內的照明程度,當晚上的時候,由于室外是黑暗的,所以,智能照明系統會調至到比白天光亮很多的適合工作的光亮程度。智能照明系統會根據不同的室內亮度來調節室內的照明亮度,幫助室內的人們更好的體驗到一個全智能的光度調節環境,使得人們的生活工作環境變得非常的合適自然。
1.1 智能照明系統的實用性
智能照明系統除了能夠自動調整光亮之外,還可以根據人們的設置,變換不同的工作模式,改善人們工作時的狀態,提高工作效率。在原始的照明系統工作,人們往往工作久了,就會感覺到眼睛疲憊,身體酸痛,頭腦發脹等身體不適現象,甚至嚴重影響工作的進度,這是因為不適宜的燈光會帶來很多的這類問題的出現。但是,現在的智能照明系統解決了這些問題,舒適的智能照明系統嚴格的控制了工作環境下的燈光亮度和光亮持久度,讓人們的身體在工作狀態下得到放松,給工作中的人們帶來了非常舒展的工作環境,同時也提高了人們的工作效率。
1.2 智能照明系統節約成本
老式的照明系統,不僅僅給人們帶來身體上的不適,更加造成人們巨大的照明成本和管理成本。現代的智能照明系統可以幫助人們解決身體上的不適之外,同時,還解決了老式照明系統中成本的問題,F在的智能照明系統非常節能,由于照明系統的工作模式是智能化的,它會根據光亮程度來調整室內的照明亮度,這就有效的避免了因為室外過亮,而室內也很亮造成的照明浪費,同時也會根據不必要照明的時候,而自動關閉照明系統節約成本。
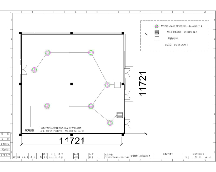
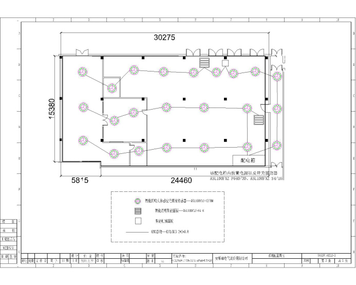
2.1 系統結構
依據中美上海施貴寶生物制藥有限公司照明情況分布情況,系統包括:站控管理層、現場設備層。系統網絡結構如圖所示:


現場設備層主要是連接于網絡中開關電源、驅動器、人體感應傳感器等,也是構建該照明系統必要的基本組成元素
2.2 網絡設計
智能照明監控系統中的網絡系統能夠及時的對數據進行傳輸,并迅速傳遞操作指令,是實現智能照明系統各項功能的基礎。把現場每個設備就地與總線連接,之后在把各條總線全部接入控制面板,通過控制面板來實現照明控制。
2.3 監控系統軟件功能設計
2.3.1定時及場景控制
智能照明系統通過時鐘管理器,實現整個系統的有關區域照明的定時和自動管理功能,實現公共通道定時控制。如節假日照明定時關閉、定時通知等。
智能照明控制系統根據各個部門的需求,設定不同種類的場景模式,進行各種照明燈光的組合,達到美化工作環境的效果;結合人體感應傳感器,當人員離開時,關閉所有照明。
2.3.2人體感應控制及恒照度控制
智能照明系統可通過在辦公走道和樓梯內,布置人體感應傳感器。在有人員進入區域時,自動開打開照明。當人員離開后,延遲一段時間再關閉。若延遲時間內有人進入,則重新進入打開模式,以達到節能目的。并且可以設置白天有效,晚上無效,根據需求設定。在室內辦公區域內,布置照度傳感器,可以根據外界自然光源,自動調節室內照明的燈光亮度和開燈數量;既充分利用了自然光,又可以為室內人員創造一個舒展的工作環境。
3、智能照明系統的意義
綜上所述,現代化的發展,已經實現了照明的智能化,越來越多的工廠已經使用上智能照明系統,智能照明系統不僅僅在功能上給予人們不一樣的體驗,更加適合人們的工作使用,F代的工廠大都使用了智能照明系統,比起老式的照明方式,現代化的智能照明系統更加的受歡迎 ;智能照明系統在工廠中的節能方式,通過加強管理節約成本、有效利于自然光源、照明系統資源共享等方式來實現資源的節約。智能照明系統的優點和實用性有很多,同時智能照明系統也在不斷地發展完善,未來工廠將會使用智能照明系統來控制照明。




掃一掃添加微信